Sand Dancer - 3BR, 3BA Home in Village of Stump Sound (Com. Pool and Tennis) | House in North Topsail Beach

3 Bedroom House in Village of Stump Sound, North Topsail Beach
It's time to turn the music up, and dance your way to a relaxing vacation at Sand Dancer, a 3 bedroom, 3 bath home located in the highly sought after neighborhood of the Village of Stump Sound. You'll love the location so take advantage of all that the VIllage of Stump Sound offers - community pool, tennis courts, community beach accesses, too. The gorgeous home, Sand Dancer, provides everything you need for a relaxing vacation with your family. Full kitchen, dining area and living room are on together for creating family memories. The inviting layout of the home features 3 comfortable bedrooms that can easily accomodate 12 people. There are plenty of outdoor spaces to help take in the rhythms and sounds of the island. So get dancing and head to Sand Dancer for a great and well deserved vacation!
Sweet Dreams: *Linens (bed/bath) are not included!
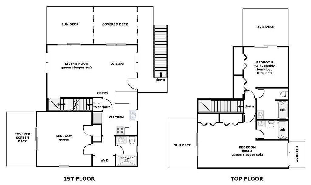
1st Floor:
Back Bedroom: Queen Bed; Smart TV; access to private covered screen deck; shares hall bathroom with shower
Queen Sleeper Sofa in Living Room
Top Floor:
Back Bedroom: King Bed and Queen Sleeper Sofa; Smart TV; access to both private sun deck and balcony; en suite bathroom with tub/shower
Front Bedoom: Twin/Double Bunk Bed with Twin Trundle; Smart TV; access to private sun deck; en suite bathroom with tub/shower
Amenities:
Central Air/Heat
Keyless Entry
Smart TV with Cable App in Living Room
Smart TV in each Bedroom
Wireless Internet
Full KItchen with Dishwasher and Microwave
Washer/Dryer
Ceiling Fans
3 Sun Decks
Covered Screen Deck with Porch Swing
Wet Weather Entry
Carport
Enclosed Outdoor Shower with Hot/Cold Water
Community Pool
Community Tennis Courts
Additional Property Information:
Smoke Free - No smoking allowed by anyone on the premises
No Pets by Tenants, though Owners may bring their own
Community Beach Access directly Across the Cul-de-Sac
Village of Stump Sound Information:
Boats, RVs, trailers, etc. must be parked underneath the home.
Access tocommunity swimming pool, tennis courts
Community swimming pool is open from Memorial Day to end of September (dates subject to change depending on weather and HOA).
Trip Preparation:
Rental homes with Ward Realty all have minimum standards to make your stay be as close to home away from home as possible. All of our rentals include fully equipped kitchens, basic small appliances (microwaves, coffee makers, toasters, blenders), pillows, comforters/bedspreads, television(s), central heating/air, iron/ironing board and much more! See our website for a helpful list of what to bring with you to your rental. Please note that this home does not come with sheets or towels. You may bring your own or rent them through Ward Realty.
Disclaimer: Photos displayed on this website are intended to provide a general representation of our vacation rental properties and the surrounding areas. While some amenities may be pictured, they are for display purposes only. Only those amenities listed on the website description, not in photos, are available. While we strive to keep all images accurate and up to date, furnishings, décor, and amenities may change over time and may vary slightly from what is shown. Seasonal differences, weather conditions, and lighting may also affect the appearance of the property. We do our best to present each rental honestly, but we cannot guarantee that every detail will be exactly as depicted. If you have specific questions or requirements, please contact us directly before booking.
Sand Dancer - 3BR, 3BA Home in Village of Stump Sound (Com Pool and Tennis) is located in Village of Stump Sound. Sand Dancer - 3BR, 3BA Home in Village of Stump Sound (Com Pool and Tennis) provides accommodation, featuring Parking, Oceanfront, Security/Safety, among other amenities. This House features Parking, Oceanfront, Security/Safety, to make your stay a comfortable one.
Sand Dancer - 3BR, 3BA Home in Village of Stump Sound (Com Pool and Tennis) has 3 Bedrooms , 3 Bathrooms, and max occupancy of 12 people. The minimum rental for this property is 1 nights, but this can change depending on the season you plan on staying. Previous guests have given good rated it, and VRBO labeled it a top-rated House because of the excellent services rendered by the owner or manager of this House, and has consistently provided great experiences for their guests. Most families or guests that use it recommend it to their friends and some of them are repeat guests. House has a friendly neighborhood, and the Village of Stump Sound has interesting places to visit. If you want to learn more about the House in Village of Stump Sound, such as places to visit and things to do nearby, you can check below to learn more.
Amenities
Facility Overview
-
Heating
-
Air conditioning
-
3 bathrooms
-
Shower
-
Sofa bed
-
3 bedrooms
-
Dining table
-
Dishwasher
-
Refrigerator
-
Microwave
-
Coffee/tea maker
-
Cookware/dishes/utensils
-
Washing machine and dryer
-
Laundry facilities
-
Near the beach
-
Onsite parking
-
No pets allowed
-
Smoke-free property
-
Tennis on site
-
Swimming nearby
-
Windsurfing nearby
-
Fishing nearby
-
Surfing/body boarding nearby
-
Smart TV
-
English
-
In a village
-
Near the sea
-
Iron/ironing board
-
Free WiFi
-
Balcony
-
Carbon monoxide detector not reported (host has not indicated whether there is a carbon monoxide detector on the property; consider bringing a portable detector)
-
Fire extinguisher
-
Deadbolt lock
-
Smoke detector installed (host has indicated there is a smoke detector on the property)
-
Shared/communal pool
Policies
Extra-person charges may apply and vary depending on property policy government-issued photo identification and a credit card, debit card, or cash deposit may be required at check-in for incidental charges host has indicated there is a smoke detector on the property host has not indicated whether there is a carbon monoxide detector on the property; consider bringing a portable detector with you on the trip onsite parties or group events are strictly prohibited safety features at this property include a fire extinguisher and a deadbolt lock special requests are subject to availability upon check-in and may incur additional charges; special requests cannot be guaranteed this property is managed through our partner, vrbo. you will receive an email from vrbo with a link to a vrbo account, where you can change or cancel your reservation