Boca North - Ocean View 3BR Home & Community Pool! | House in North Topsail Beach

3 Bedroom House in Village of Stump Sound, North Topsail Beach
This beautiful 3 bedroom, 2.5 bath oceanview home is a great spot to relax and unwind, especially with the added benefits of the premier neighborhood amenities of the Village of Stump Sound. Enjoy the contemporary coastal décor and family-friendly layout of the home as well as the beautiful landscaping and community pool with clubhouse, tennis court and more! This vacation home is an easy choice for your family to get the most out of your vacation to Topsail Island.
Living and Dining:
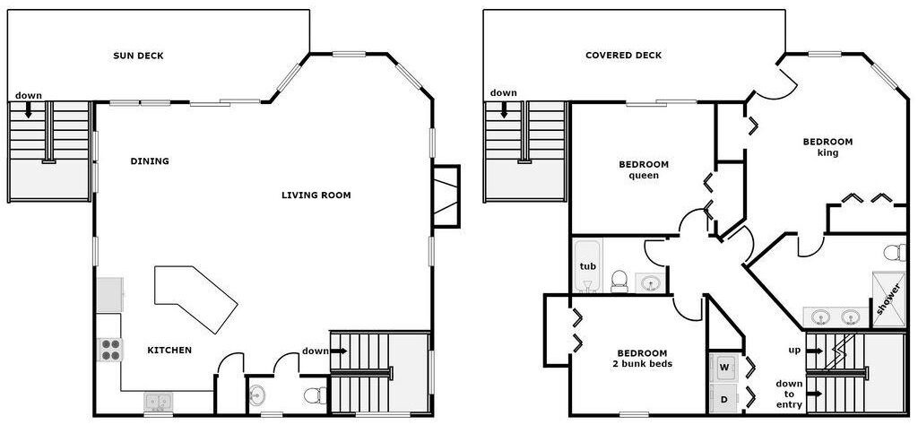
The popular reverse floorplan maximizes amazing views from the living and dining area on the second floor. The bright modern kitchen, complete with granite counters and a large island that seats 4, is open to the dining area with seating for 8-10. The comfortably furnished living room is framed by large oceanview windows and a slider to the sun deck - compelte with furniture and ocean views. There is also an additional dining table in the living area that can be used for puzzles and games when the weather won't cooperate!
Sweet Dreams: Linens included for all reservations 7 nights or longer.
South Oceanside Bedroom: King Bed; TV; full private bath with shower; access to the covered deck
North Oceanside Bedroom: Queen Bed; TV; full bath with tub/shower adjacent; access to the covered deck
North Street-Side Bedroom: 2 Bunk Beds; TV; full bath with tub/shower adjacent
Outdoor Spaces:
Located in the lovely neighborhood of Village of Stump Sound, you’ll have access to the community swimming pool, tennis courts and boat launch (kayaks/canoes only). Community swimming pool is open from Memorial Day to end of September (dates subject to change depending on weather and HOA). The beach access is a shared walkway next door at the pool/clubhouse. Enjoy the ocean breezes from either of the two oceanview decks.
Location:
Your beach rental is located approximately 3.5 miles north of the Surf City high rise bridge in North Topsail Beach. You'll love the peace of quiet here. Head to Surf City or Sneads Ferry (mainland) for restaurants, shops, and more! Be sure to visit some local attractions such as the Karen Beasley Sea Turtle Hospital and the Missiles and More Museum, which tells the story of our island's past.
Amenities:
Linens are included for all reservations 7 nights, or longer
Central Heat/Air
Keyless Entry
4 Smart TV's
Wireless Internet
Full kitchen with dishwasher & microwave
Washer/Dryer
Ceiling fans
Outside shower - cold water only
1-car garage with wet weather entry
2 sundecks with deck furniture
Additional Property Information:
Boats, RVs, trailers, etc. must be parked underneath the home.
Access to Village of Stump Sound community swimming pool, tennis courts and small watercraft launch (kayaks/SUPs only).
Community swimming pool is open from Memorial Day to end of September (dates subject to change depending on weather and HOA).
Fireplace is not available for guests.
Smoke Free - No smoking allowed by anyone on the premises.
No Pets - No pets allowed by tenants on the premises.
Trip Preparation:
Rental homes with Ward Realty all have minimum standards to make your stay be as close to home away from home as possible. All of our rentals include fully equipped kitchens, basic small appliances (microwaves, coffee makers, toasters, blenders), pillows, comforters/bedspreads, television(s), central heating/air, iron/ironing board and much more! See Ward Realty's website for a helpful list of what to bring with you to your vacation rental. Please note that this vacation rental does not come with sheets or towels. You may bring your own or rent them through Ward Realty.
Disclaimer: Photos displayed on this website are intended to provide a general representation of our vacation rental properties and the surrounding areas. While some amenities may be pictured, they are for display purposes only. Only those amenities listed on the website description, not in photos, are available. While we strive to keep all images accurate and up to date, furnishings, décor, and amenities may change over time and may vary slightly from what is shown. Seasonal differences, weather conditions, and lighting may also affect the appearance of the property. We do our best to present each rental honestly, but we cannot guarantee that every detail will be exactly as depicted. If you have specific questions or requirements, please contact us directly before booking.
Boca North - Ocean View 3BR Home & Community Pool! is located in Village of Stump Sound. Boca North - Ocean View 3BR Home & Community Pool! provides accommodation, featuring View, Pool, TV, among other amenities. This House features View, Pool, TV, to make your stay a comfortable one.
Boca North - Ocean View 3BR Home & Community Pool! has 3 Bedrooms , 2 Bathrooms, and max occupancy of 8 people. The minimum rental for this property is 1 nights, but this can change depending on the season you plan on staying. Previous guests have given good rated it, and VRBO labeled it a top-rated House because of the excellent services rendered by the owner or manager of this House, and has consistently provided great experiences for their guests. Most families or guests that use it recommend it to their friends and some of them are repeat guests. House has a friendly neighborhood, and the Village of Stump Sound has interesting places to visit. If you want to learn more about the House in Village of Stump Sound, such as places to visit and things to do nearby, you can check below to learn more.
Amenities
Facility Overview
-
Heating
-
Air conditioning
-
Shower
-
2+ bathrooms
-
3 bedrooms
-
Bed sheets provided
-
Dining table
-
Oven
-
Microwave
-
Cookware/dishes/utensils
-
Coffee/tea maker
-
Ice maker
-
Dishwasher
-
Refrigerator
-
Toaster
-
Stovetop
-
Laundry facilities
-
Washing machine and dryer
-
Near the beach
-
Onsite parking options include a garage
-
Onsite parking
-
Car required
-
No pets allowed
-
Smoke-free property
-
Tennis on site
-
Surfing/body boarding nearby
-
Fishing nearby
-
Swimming nearby
-
Windsurfing nearby
-
Games
-
DVD player
-
Smart TV
-
English
-
Near the sea
-
In a village
-
Iron/ironing board
-
Free WiFi
-
Deck
-
Smoke detector installed (host has indicated there is a smoke detector on the property)
-
Fire extinguisher
-
Carbon monoxide detector not reported (host has not indicated whether there is a carbon monoxide detector on the property; consider bringing a portable detector)
-
Deadbolt lock
-
Hot tub
-
Shared/communal pool
Policies
Extra-person charges may apply and vary depending on property policy government-issued photo identification and a credit card, debit card, or cash deposit may be required at check-in for incidental charges host has indicated there is a smoke detector on the property host has not indicated whether there is a carbon monoxide detector on the property; consider bringing a portable detector with you on the trip onsite parties or group events are strictly prohibited safety features at this property include a fire extinguisher and a deadbolt lock special requests are subject to availability upon check-in and may incur additional charges; special requests cannot be guaranteed this property is managed through our partner, vrbo. you will receive an email from vrbo with a link to a vrbo account, where you can change or cancel your reservation