Pine Cone Cottage | Gorgeous Mountain Cottage with Screened in Porch & Outdoor Fireplace | Cabin in Highlands

3 Bedroom Cabin in Highlands Hills, Highlands
WE DO NOT ACCEPT AMEX
This Rent In Highlands vacation rental home is pet friendly for one small dog, under 20 pounds. Pets must be pre-approved. An additional non-refundable pet fee is required and is not included in the rental fee. Please call our office for approval and to pay the pet fee. Failure to adhere to this policy will result in a $1000.00 fine.
Only adults (25 years old and older) may reserve this property and an adult must occupy the property at all times.
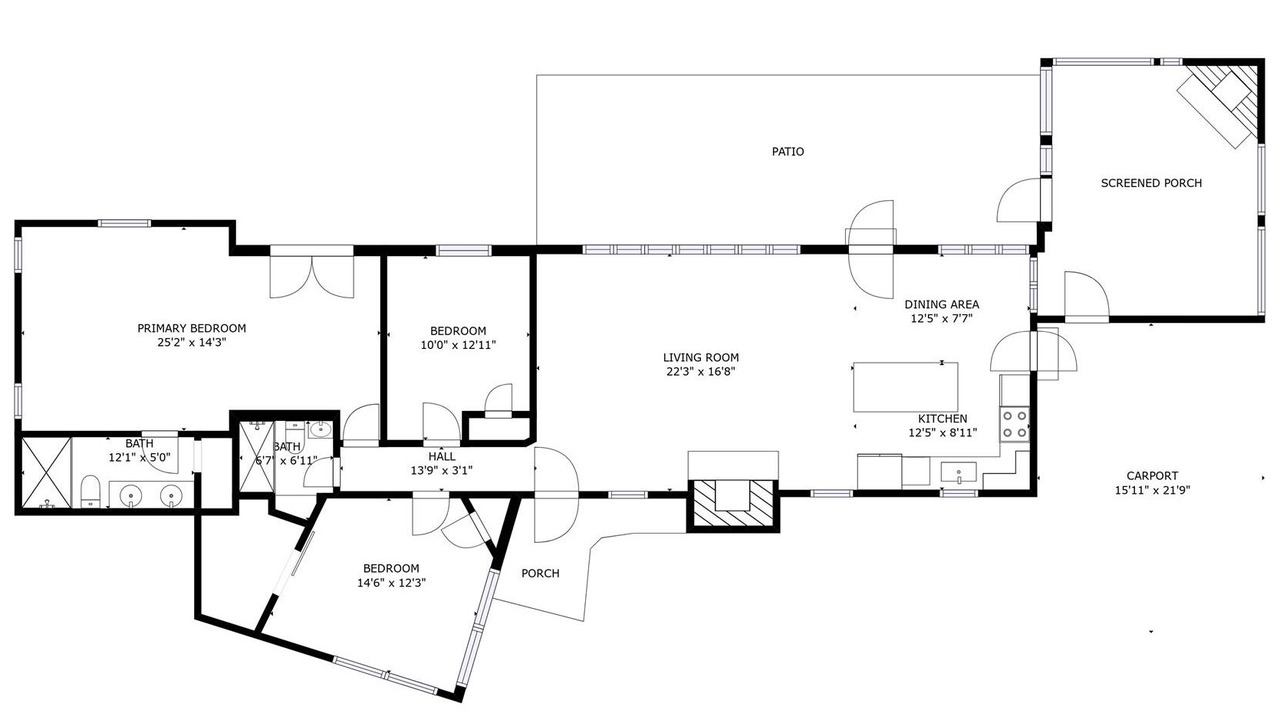
This recently renovated home features a thoughtfully updated interior with a brand-new kitchen, primary bathroom, and fresh bedroom flooring and ceilings. The home blends modern updates with original touches, such as the slate floors that run throughout. The oversized primary bedroom includes a separate sitting area, perfect for reading or unwinding while enjoying distant mountain views. The home offers all living space on one level, making it ideal for families or those who prefer to avoid stairs. Each bedroom, along with the living room, is furnished with plush linens, pillows, and blankets, creating an inviting atmosphere where you can relax in comfort. Floor-to-ceiling windows in the living room and dining area provide beautiful views of Whiteside Mountain, making these spaces feel bright and airy. The layout is open and seamless, allowing for easy flow from room to room, perfect for both everyday living and entertaining.
Outdoor Spaces:
Step through the back door of the main living area and onto the charming stone patio, where you'll find a cozy firepit and a convenient gas grill—perfect for relaxing evenings and outdoor meals. The patio seamlessly connects to a spacious screened-in porch, thoughtfully furnished with comfortable seating for the entire family. Surrounded by the warmth of a wood-burning fireplace, this serene space offers the ideal setting for unwinding, enjoying good company, or simply taking in the peaceful surroundings.
*Owners Note*We love our cottage and the quaint town of Highlands. We come to unwind and relax any chance we can get. We wanted it to feel like a "home away from home" and we have taken careful steps to ensure it is comfortable and inviting. We hope people will come and enjoy the home and fall in love with Highlands like we have!
What our guests are saying…
"Beautiful Home, great location. Home was truly lovely and in the perfect location. Could walk to town. Lake view from the front porch was serene. Would recommend this property to everyone."- Rent In Highlands Vacation Rental Guest, Jennifer S.
Special Amenities:
Wood Burning Fireplace
Outdoor Firepit
This home is professionally managed by Rent in Highlands, a division of Country Club Properties. Your premier source for Vacation Rentals in Highlands NC.
Pine Cone Cottage | Gorgeous Mountain Cottage with Screened in Porch & Outdoor Fireplace is located in Highlands Hills. Pine Cone Cottage | Gorgeous Mountain Cottage with Screened in Porch & Outdoor Fireplace provides accommodation, featuring Sports/Activities, Barbecue/Outdoor Cooking, Laundry, among other amenities. This Cabin features Sports/Activities, Barbecue/Outdoor Cooking, Laundry, to make your stay a comfortable one.
Pine Cone Cottage | Gorgeous Mountain Cottage with Screened in Porch & Outdoor Fireplace has 3 Bedrooms , 2 Bathrooms, and max occupancy of 6 people. The minimum rental for this property is 1 nights, but this can change depending on the season you plan on staying. Previous guests have given good rated it, and VRBO labeled it a top-rated Cabin because of the excellent services rendered by the owner or manager of this Cabin, and has consistently provided great experiences for their guests. Most families or guests that use it recommend it to their friends and some of them are repeat guests. Cabin has a friendly neighborhood, and the Highlands Hills has interesting places to visit. If you want to learn more about the Cabin in Highlands Hills, such as places to visit and things to do nearby, you can check below to learn more.
Amenities
Facility Overview
-
Air conditioning
-
Heating
-
Towels provided
-
2 bathrooms
-
Hair dryer
-
Bed sheets provided
-
3 bedrooms
-
Dining table
-
Fireplace
-
Living room
-
Sitting area
-
Toaster
-
Cookware/dishes/utensils
-
Ice maker
-
Oven
-
Refrigerator
-
Kitchen island
-
Dishwasher
-
Microwave
-
Stovetop
-
Washing machine and dryer
-
Laundry facilities
-
Onsite parking
-
Pet friendly
-
Smoke-free property
-
Ice skating nearby
-
Hiking nearby
-
Hiking/biking trails nearby
-
Mountain biking nearby
-
Golf nearby
-
Basketball nearby
-
Golfing on site
-
Fishing nearby
-
Tennis on site
-
Swimming nearby
-
TV
-
Unit size: 1 sq ft (0 sq m)
-
English
-
In the mountains
-
Iron/ironing board
-
Free WiFi
-
Firepit
-
Patio
-
Barbecue grill
-
Smoke detector installed (host has indicated there is a smoke detector on the property)
-
Carbon monoxide detector installed (host has indicated there is a carbon monoxide detector on the property)
-
First aid kit
-
Deadbolt lock
-
Fire extinguisher
-
Shared/communal pool
Policies
Extra-person charges may apply and vary depending on property policy government-issued photo identification and a credit card, debit card, or cash deposit may be required at check-in for incidental charges host has indicated there is a carbon monoxide detector on the property host has indicated there is a smoke detector on the property onsite parties or group events are strictly prohibited safety features at this property include a fire extinguisher, a first aid kit, and a deadbolt lock special requests are subject to availability upon check-in and may incur additional charges; special requests cannot be guaranteed this property is managed through our partner, vrbo. you will receive an email from vrbo with a link to a vrbo account, where you can change or cancel your reservation