Oceanfront! Topsail Dunes Beachfront Condo with Pool and Balcony | Condo in North Topsail Beach

1 Bedroom Condo in Sneads Ferry, North Topsail Beach
This comfy second-floor 1 BR condo in Topsail Dunes on North Topsail Beach is oceanfront with ocean views and is steps to the beach on North Topsail Island away from the hustle and bustle and Surf City traffic.The complex has a pool open seasonally.
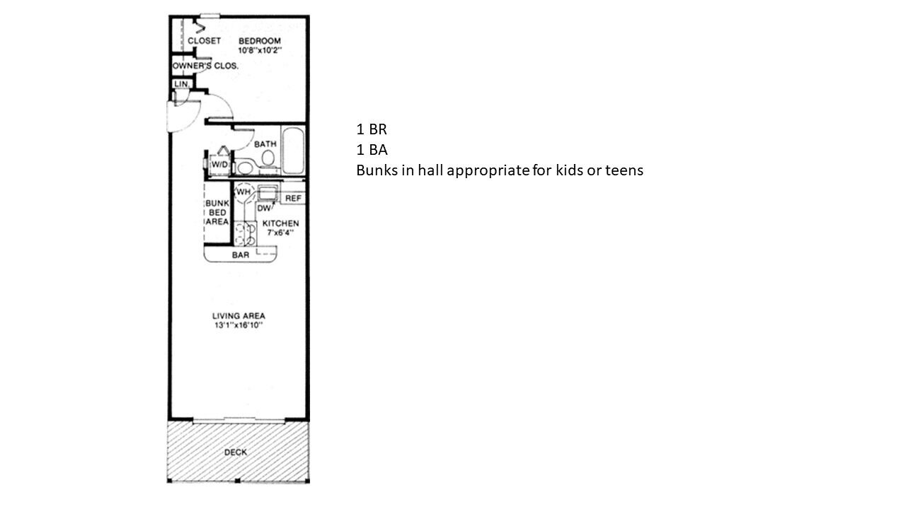
Perfect for a small family or couple, it sleeps 4 with a Sleep Number queen bed in master (adjust to your liking), 2 bunks in the hall for little ones.
We offer the conveniences and additional safety features of a Smart Home system - smart door lock (no keeping up with a key), thermostat, smoke detectors, water sensors and upgraded wifi, Google Home, and smart TV for streaming.
You can watch the fishing boats from the balcony and then take a short drive to get fresh catch to cook up in the fully-equipped kitchen. We've even left you a few cookbooks for inspiration.
In this primarily residential part of North Topsail island, the kids can play on the beach or the pool and couples can take a stroll on the beach under stars away from the bright lights and tourist traps - and the fishing is great from the surf, the sound, or the pier 2 miles away.
A short drive over the big bridge takes you to shopping and dining in Sneads Ferry. Drive down the beach to Surf City for more shopping, dining and entertainment, jet ski or kayak rentals. There are several boats that offer cruises around the island or out to Lea Island for shelling.
Nearby Wilmington (35 miles) offers more fun and entertainment, fine dining, ghost tours (!), and a battleship to tour. Jacksonville is also a short 20-minute drive for more shopping and dining options.
North Topsail Beach is known for shells, shark's teeth, turtle nestings, dolphins in the surf, and an occasional whale sighting during migration. Here, the sky is dark and the moon is bright and you can see all the stars at night. Watch the sun rise over the ocean and then see it set over the sound. Bring some binoculars to watch the fishing boats or ships on the horizon.
Things to know -
No pets. Not just our unit, but the entire complex.
Our unit is on the second floor and there is no elevator, so you'll have to climb 2 flights of stairs.
All sheets and towels are provided at no additional cost.
We even have some beach towels, chairs, a cooler, an umbrella, and some sand toys, so you don't have to lug them from home or buy them.
Other amenities -
Pool (in season)
Basketball court
Playground
Outdoor grilling area
Do a little or do a lot. We hope this becomes your favorite beach retreat!
NOTE: We've been told that this doesn't show up on the listing until you book, so want to be upfront about taxes, fees, security deposit and travel insurance requirements.
** We do require the $59 travel insurance offered by VRBO that you will see when you book. We feel it protects both you and us should the unthinkable happen. Additionally, we require a $100 REFUNDABLE security deposit (for things like parking passes and pool bands). Lodging taxes and the VRBO fees go to VRBO - and we can't change those. **
Oceanfront! Topsail Dunes Beachfront Condo with Pool and Balcony is located in Sneads Ferry. Oceanfront! Topsail Dunes Beachfront Condo with Pool and Balcony provides accommodation, featuring Laundry, Air Conditioner, Oceanfront, among other amenities. This Condo features Laundry, Air Conditioner, Oceanfront, to make your stay a comfortable one.
Oceanfront! Topsail Dunes Beachfront Condo with Pool and Balcony has 1 Bedroom , 1 Bathroom, and max occupancy of 4 people. The minimum rental for this property is 1 nights, but this can change depending on the season you plan on staying. Previous guests have given good rated it, and VRBO labeled it a top-rated Condo because of the excellent services rendered by the owner or manager of this Condo, and has consistently provided great experiences for their guests. Most families or guests that use it recommend it to their friends and some of them are repeat guests. Condo has a friendly neighborhood, and the Sneads Ferry has interesting places to visit. If you want to learn more about the Condo in Sneads Ferry, such as places to visit and things to do nearby, you can check below to learn more.
Amenities
Policies
Extra-person charges may apply and vary depending on property policy government-issued photo identification and a credit card, debit card, or cash deposit may be required at check-in for incidental charges host has indicated there is a carbon monoxide detector on the property host has indicated there is a smoke detector on the property onsite parties or group events are strictly prohibited safety features at this property include a fire extinguisher, a first aid kit, and a deadbolt lock special requests are subject to availability upon check-in and may incur additional charges; special requests cannot be guaranteed this property has outdoor spaces, such as balconies, patios, terraces which may not be suitable for children; if you have concerns, we recommend contacting the property prior to your arrival to confirm they can accommodate you in a suitable room this property is managed through our partner, vrbo. you will receive an email from vrbo with a link to a vrbo account, where you can change or cancel your reservation