300 Oakmont: 4 BR, 3 BA House in Pinehurst, Sleeps 8 | House in Pinehurst

4 Bedroom House in Pinehurst
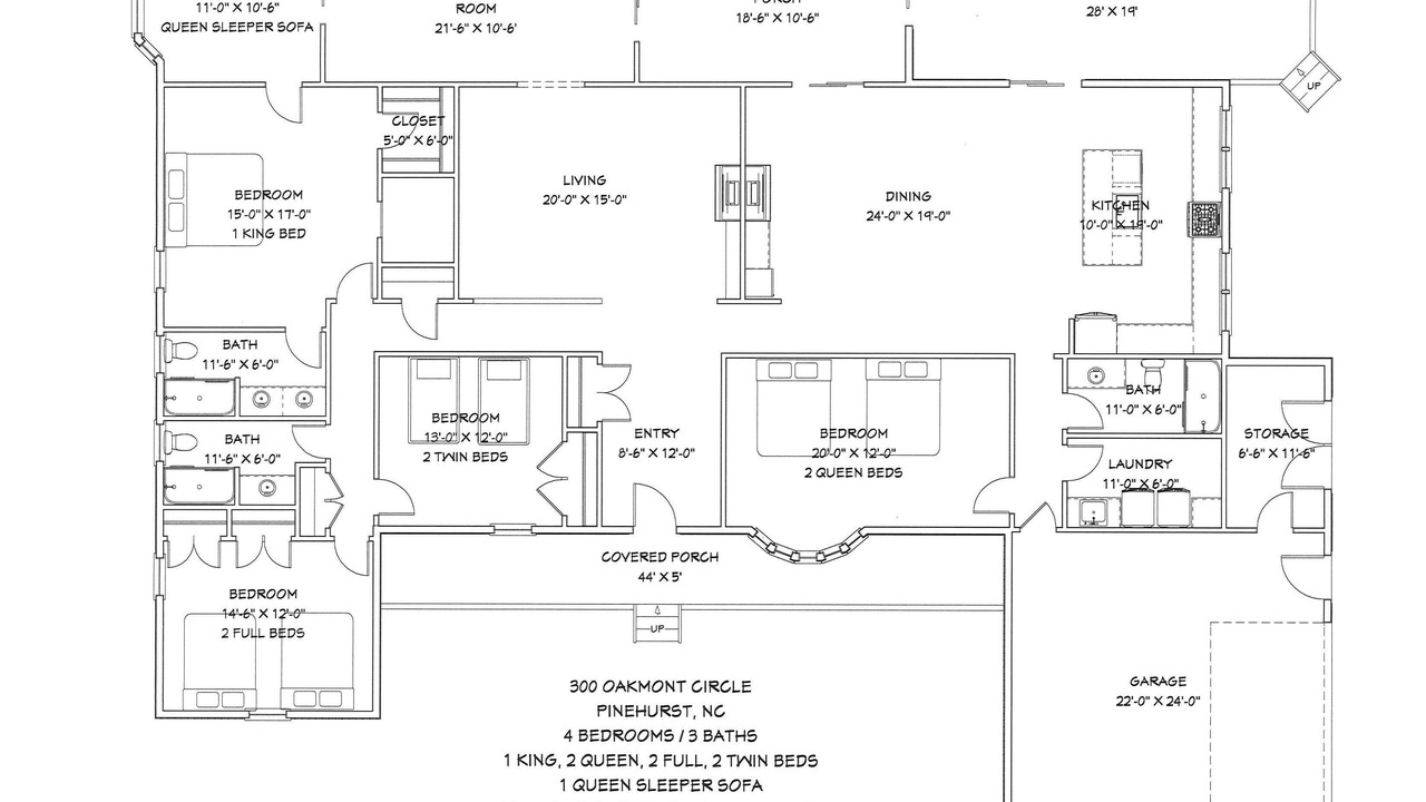
Welcome to 300 Oakmont! This newly updated 4 Bed, 3 Bath, ranch style home is perfect for any vacation in Pinehurst! Home is a true representation of an open layout. Renovated in 2022, 300 Oakmont offers a modern and updated ambiance. There is plenty of space for everyone to unwind and relax. Whether you like to enjoy an early morning cup of coffee out in the Carolina room, or a glass of wine (from your own personal wine fridge) to enjoy a crisp North Carolina sunset, this home has a vibe for everyone in your group. Sitting on a large, wooded lot, allows for peace and privacy as you enjoy each other’s company. Located less than a mile from the Village, putting you right by all the finer things Pinehurst has to offer. Oakmont is equipped with Wi-Fi, Keurig machine, drip coffee maker, grill, two gas fireplaces, ceiling sonos speaker system, washer & dryer, two full sized fridges, a wine fridge, fully equipped kitchen and six burner gas range stove cable tv with over 150 channels, backup generator, and a large 2 car garage. Home includes 3 Smart Tv's. Parking for 4 cars.
Home is only pet friendly to non-shedding dogs under 40lbs. *Non-Refundable pet fee required ($150 per pet)! This is not included in the total quoted price. Pet fee will be added after reservation is booked. Please contact management if you plan on bringing your pet.
Home does require some steps and uneven surfaces.
Primary Bedroom- 1 King, en-suite
Bedroom 2- 2 Queen Beds
Bedroom 3- 2 Full Beds
Bedroom 4 – 2 Twin Beds
Office/ Den- Queen Sleeper Sofa
For insurance and security rules, you may be asked to provide a copy of your official government-issued photo ID, confirm your contact information, provide a valid credit card with a name that matches your ID, pass through our verification portal and, in some instances, complete a criminal background check.
Important note: The information is collected for screening and verification only and is not stored or used for any other purposes.
Please be advised that all guests will be asked to sign a rental usage agreement that governs the terms of the stay.
By completing the reservation you understand that your check-in instructions might be withheld until you have successfully completed our verification portal.
300 Oakmont: 4 BR, 3 BA House in Pinehurst, Sleeps 8 is located in Pinehurst. 300 Oakmont: 4 BR, 3 BA House in Pinehurst, Sleeps 8 provides accommodation, featuring Bedding/Linens, Kitchen, Wellness Facilities, among other amenities. This House features Bedding/Linens, Kitchen, Wellness Facilities, to make your stay a comfortable one.
300 Oakmont: 4 BR, 3 BA House in Pinehurst, Sleeps 8 has 4 Bedrooms , 3 Bathrooms, and max occupancy of 8 people. The minimum rental for this property is 1 nights, but this can change depending on the season you plan on staying. Previous guests have given good rated it, and VRBO labeled it a top-rated House because of the excellent services rendered by the owner or manager of this House, and has consistently provided great experiences for their guests. Most families or guests that use it recommend it to their friends and some of them are repeat guests. House has a friendly neighborhood, and the Pinehurst has interesting places to visit. If you want to learn more about the House in Pinehurst, such as places to visit and things to do nearby, you can check below to learn more.
Amenities
Facility Overview
-
Air conditioning
-
Heating
-
Towels provided
-
3 bathrooms
-
Shower
-
Hair dryer
-
Sofa bed
-
Bed sheets provided
-
4 bedrooms
-
Dining table
-
Fireplace
-
Living room
-
Cookware/dishes/utensils
-
Ice maker
-
Coffee/tea maker
-
Oven
-
Refrigerator
-
Kitchen island
-
Dishwasher
-
Microwave
-
Stovetop
-
Washing machine and dryer
-
Laundry facilities
-
Onsite parking options include a garage
-
Limited onsite parking (max 2 spaces)
-
Onsite parking
-
Pet friendly
-
Smoke-free property
-
Golf nearby
-
Golfing on site
-
Stereo
-
Smart TV with cable/satellite service
-
English
-
Near a hospital
-
In a village
-
Free WiFi
-
Garden
-
Patio
-
Barbecue grill
-
Smoke detector installed (host has indicated there is a smoke detector on the property)
-
Carbon monoxide detector installed (host has indicated there is a carbon monoxide detector on the property)
Policies
Extra-person charges may apply and vary depending on property policy government-issued photo identification and a credit card, debit card, or cash deposit may be required at check-in for incidental charges host has indicated there is a carbon monoxide detector on the property host has indicated there is a smoke detector on the property onsite parties or group events are strictly prohibited special requests are subject to availability upon check-in and may incur additional charges; special requests cannot be guaranteed this property is managed through our partner, vrbo. you will receive an email from vrbo with a link to a vrbo account, where you can change or cancel your reservation